Planning Advice
We always endeavor to offer good planning advice when requested. We can also supply personolised scaled elevation drawings to support a planning application for your building
For further details, call James or Ally on 07870 269323 or 01373 813067.
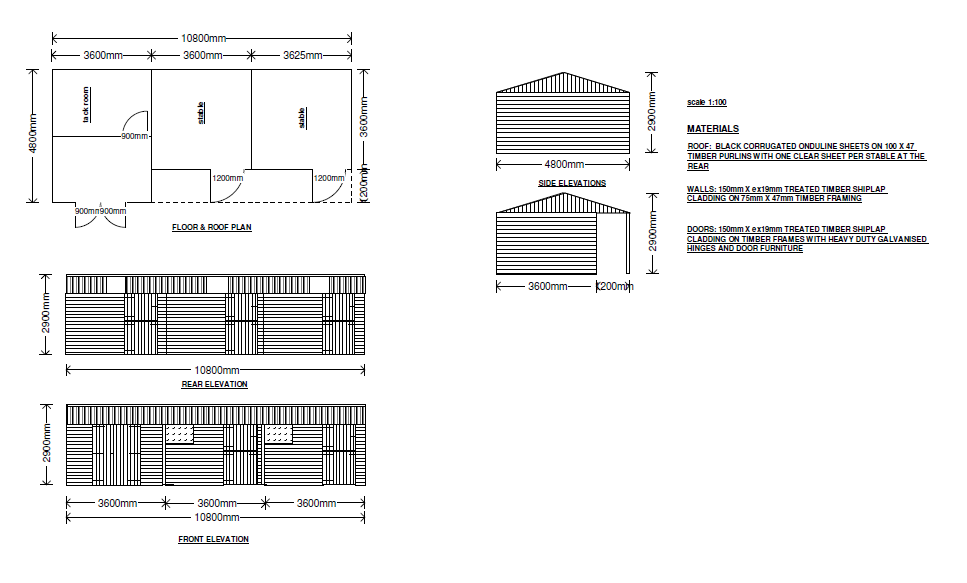
Elevations Drawing for Planning Purposes
Below is an example elevation drawing supplied to support a planning application.
